Растительность
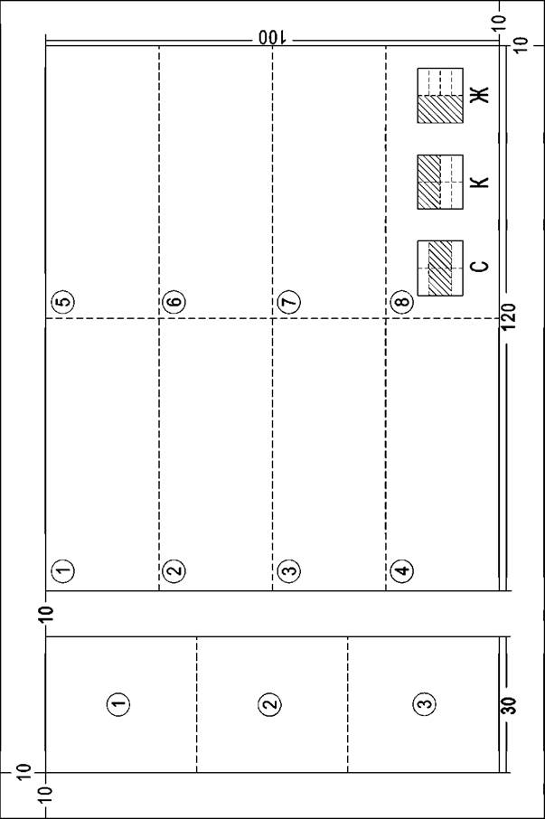
Вычертить две группы условных знаков: сельскохозяйственные угодья и растительность (рис. 21 и соответствующий раздел Приложения №1). В левой части чертежа вычертить следующие виды угодий: пашню, залежь, пастбище и сенокос.
Контур пашни показать точечным пунктиром. Точки проставить на равном расстоянии друг от друга через 1-1,5 мм, размером 0,2 мм. Пашня в отличие от других угодий, штрихового знака не имеет.
Для вычерчивания системных знаков (залежь, сенокос, пастбище) построить вспомогательную карандашную сетку установленных размеров. Условные знаки залежи и пастбища вычертить на диагональной сетке в шахматном порядке, заполняя ими всю площадь внутри контура. Знак сенокоса ставится в шахматном порядке по прямой сетке квадратов. Знак заболоченности и дополняющий знак заливного сенокоса вычертить зеленым (синим) цветом.
Знаки, характеризующие качественное состояние угодий (наличие осушительной сети, заболоченность и др.) разместить в соответствии с установленными правилами (см. Приложение №1).
В правой части работы вычертить условные знаки растительности. Смешанный лес, редкий лес и кустарник (почвозащитный) изобразить окружностями при помощи кронциркуля. Вначале знаки разместить вдоль границы, в один ряд с интервалом примерно 10 мм, а затем равномерно по всей площади внутри контура. Для обозначения характеристики леса (хвойный, лиственный, смешанный) в центре контура вычертить соответствующие условные знаки. Условный знак фруктового сада вычертить рядами, по квадратной сетке, проведенной параллельно наибольшей стороне участка сада. Знак виноградника — в шахматном порядке по прямоугольной сетке. Условные знаки вырубленного и горелого леса вычертить на произвольном (8-10 мм) расстоянии по вертикальным карандашным линиям равномерно по всей площади, придерживаясь шахматного порядка.
При вычерчивании условных знаков мохового и камышового болота вначале изобразить знаки болотной растительности черным цветом, а затем произвести штриховку контура болота рейсфедером с помощью штриховального прибора зеленым (синим) цветом.
Задание 10. Линейные знаки
Работа заключается в вычерчивании условных знаков гидрографии, рельефа, дорог и границ (рис. 22 и соответствующие разделы Приложения №1).
В левой части выполнить условные знаки гидрографии и рельефа местности, скопированные с Приложения №4. Береговую линию реки, озера и пруда вычертить зеленым (синим) цветом с помощью пера или кривоножки, предварительно вычертив черным цветом гидротехнические сооружения (мосты, плотину и проч.) и указать направление течения реки.
![]() |
Рис. 22. Линейные
знаки
Элементы рельефа (ямы, курганы, овраги, оползни) вычертить коричневым цветом. Знаки растительности и стрелки — черным.
В правой части чертежа выполнить некоторые виды дорог и границ. На рис. 22 показаны существующие и проектируемые сельские дороги: улучшенные грунтовые, проселочные, полевые или лесные, скотозагоны (без ограждений и с ограждениями). Для выполнения условных знаков дорог сначала произвести карандашную подготовку, после чего вычертить знаки тушью с помощью рейсфедера. Размеры знаков приведены в соответствующем разделе Приложения №1.
Границы, наряду с условными знаками угодий, являются одним из основных элементов, изображаемых на планах и проектах. В землеустроительных условных знаках насчитывается 15 видов границ, причем каждый вид границы оттеняется определенным цветом и различной толщиной линии. На рис 22 показаны следующие границы: землепользования, между отделениями, полей севооборота и участка, намеченного для мелиорации (необходимая дополнительная информация — в Приложении №1). Для выполнения работы сначала необходимо наметить карандашом и вычертить рейсфедером линии границ черной тушью. Затем оттенить границы по всей длине линиями установленной толщины и цвета. Внешнюю границу землепользования оттенить произвольными, но контрастными цветами. Границу между отделениями оттенить с двух сторон, а границу полей севооборотов — с одной стороны красным цветом линиями указанной толщины. Границу участка, намеченного для мелиорации, оттенить фиолетовым цветом внутрь контура и дать сокращенную пояснительную надпись рубленым полужирным шрифтом.
Задание 11. Часть топографической карты
Работа заключается в вычерчивании части листа топографической карты масштаба 1:10 000 (или плана масштаба 1:2 000).
Для выполнения работы «Часть топографической карты» масштаба 1:10 000 (макет на рис. 23) использовать «Условные знаки для топографической карты масштаба 1:10 000» (или Приложение №2) и фрагмент для копирования (Приложение №5(1) и 5(2)).
Для выполнения работы «Часть топографического плана» масштаба 1:2 000 (макет на рис. 24) использовать «Условные знаки для топографических планов масштабов 1:5 000, 1:2 000, 1:1 000, 1:500» и фрагмент для копирования (Приложение №6(1)-6(2)).
К выполнению могут быть предложены другие фрагменты карты (плана). Необходимые материалы выдаются преподавателем.
Порядок работы. Сначала подготовить карандашную копию. Фрагменты для копирования (в Приложениях) разделены на две части, которые следует аккуратно совместить по прерванным линиям на форматке стандартного размера (210×150 мм с рамкой 180×120 мм). Затем вычертить все элементы содержания чертежным пером и чертежными инструментами тушью в три цвета (чёрный, зеленый (синий), коричневый) согласно требованиям соответствующих «Условных знаков…». Вычерчивание элементов содержания выполнить в следующей последовательности.
1. Внутренняя рамка, стороны которой используются для ориентирования надписей и условных знаков. Внутренняя рамка служит границей изображения, и пересечения сторон рамки линиями условных знаков, горизонталями или надписями не разрешается.
2. Опорные пункты и ориентиры.
3. Населенные пункты. Каждый населенный пункт вычерчивают в отдельности с полной и окончательной отработкой всех деталей его изображения. Последовательность вычерчивания населенного пункта любого типа принципиально одинакова. Как правило, вычерчивание населенных пунктов начинают с ориентиров и главных улиц. Затем вычерчивают: отдельно расположенные (вне кварталов) жилые и нежилые постройки, остальные улицы, переулки, проезды, кварталы и строения, расположенные внутри них. Затем вычерчивают внешние контуры угодий, являющиеся контуром населенного пункта (сельского типа), заполняют условными знаками контуры растительного покрова внутри населенного пункта и на его окраинах (сады, парки, огороды и т.д.).
4. Пути сообщения и средства связи. Это — дорожная сеть, дорожные сооружения, просеки, линии связи, линии электропередач, газопроводы, нефтепроводы, и другие линейные объекты). Дорожную сеть вычерчивают в следующем порядке: железные дороги, шоссейные дороги (начиная с дорог высших классов), грунтовые дороги и тропы. Далее остальные элементы.
5. Гидрография. Начинают с вычерчивания сооружений, прерывающих береговую линию: знаков урезов воды, пристаней, шлюзов, плотин, мостов и т. д., а также источников,
ключей, колодцев, небольших озер и прудов. Затем вычерчивают береговые линии морей, заливов, больших озер, рек и каналов, изображаемых в две линии. Далее — реки и каналы, изображаемые в одну линию. В последнюю очередь вычерчивают прочие объекты, относящиеся к гидрографии, (стрелки, указывающие направление течения рек, переправы и др.). Цвет объектов гидрографии, согласно требованиям «Условных знаков…» соответствующего масштаба, — зелёный (синий).
6. Границы и ограждения вычерчивают в соответствии с условными знаками.
7. Рельеф. Вычерчивается коричневым цветом (некоторые объекты — черным). Начинают с микроформ рельефа: скал, осыпей, промоин, оврагов, обрывов, ям, курганов, карьеров и т.п. Затем вычерчивают горизонтали. Горизонтали не должны пересекать водоемы, реки и каналы, показываемые в две линии, овраги, сухие русла, формы рельефа искусственного происхождения (карьеры, насыпи, выемки и т.п.). Более подробная информация приводится в пояснениях к соответствующим разделам «Условных знаков…».
8. Надписи внутри рамки. Шрифт и размеры надписей должны соответствовать требованиям «Условных знаков…» нужного масштаба.
9. Элементы почвенно-растительного покрова. Вычерчивание начинают с точечного пунктира, которым показываются контуры различных видов грунтов и растительного покрова. Далее все площади заполняют соответствующими условными знаками. Если знаки системные, то предварительно следует построить вспомогательные сетки. В конце вычерчивают знаки отдельных кустов, деревьев, узких полос леса и других знаков, расположенных вне контуров.
10.Зарамочное оформление.
11. Пояснительные надписи и цифры, которые относятся к условным
знакам, выполнять сразу после вычерчивания этих знаков.

Рис. 23. Часть топографической карты (масштаб 1 : 10 000)

Рис. 24. Часть топографического плана (масштаб 1 : 2000)
Размеры условных знаков должны соответствовать масштабу карты (плана).
Числа, заключенные в окружности в контурах (рис. 23) обозначают следующее: 1 — высокотравная растительность; 2 — сплошные заросли кустарников; 3 — заболоченный луг; 4 — луг с кочками; 5 — луг; 6 — редколесье; 7 — гарь (горелый лес) с порослью; 8 — лес вырубленный; 9 — лес; 10 — заболоченный кустарник; 11 — бурелом; 12 — кладбище; 13 — ягодный сад; 14 — фруктовый сад; 15 — огород.
Работа красками
Общие сведения. Для выполнения заданий необходимо иметь небольшой набор акварельных красок или цветную тушь, кисть из натурального волоса № 4 — 10 (чем меньше номер, тем тоньше кисть), баночки для разведения красок и промывки кисти, промокательную бумагу. Краски следует употреблять только в жидкоразведённом виде, так как густоразведённые краски ложатся неровно.
Техника окрашивания
1. Окраску производят по предварительно увлажненной бумаге, для чего ее смачивают водой кистью или ватным тампоном и дают подсохнуть.
2. Окрашиваемый чертеж держат в слегка наклонном положении для равномерного стока и распределения краски по бумаге.
3. Краску набирают кистью из верхнего слоя отстоявшегося раствора.
4. Перед окраской необходимо на черновике (бумаге того же качества, что и выполняемый чертеж) проверить цвет приготовленного раствора.
5. Окраску начинают с верхней части контура, расположив чертеж так, чтобы красочный валик был наименьшим по длине (т.е. вдоль длинной стороны контура). Набрав полную кисть краски, продвигают ее по краю верхней границы слева направо. Затем образовавшийся красочный валик перемещают короткими движениями кисти (1-1,5 см) сверху вниз и слева направо, сохраняя его горизонтальность. По мере надобности валик насыщают краской и повторяют процесс до тех пор, пока краска не окажется в нижнем правом углу контура.
Избыток краски собирают кистью, предварительно осушив ее о промокательную бумагу. 6. Для получения более насыщенного тона окраску следует повторить, повернув форматку в обратном направлении (на 180°). Повторную окраску производят по высохшей поверхности. Окрашивание проектов и планов можно производить акварельными красками или анилиновыми красителями и цветной тушью, которая в отличие от красок не дает осадка и готова к использованию сразу после приготовления раствора. Непосредственно перед окрашиванием цветную тушь разводят из расчета 2-3 капли на столовую ложку воды.
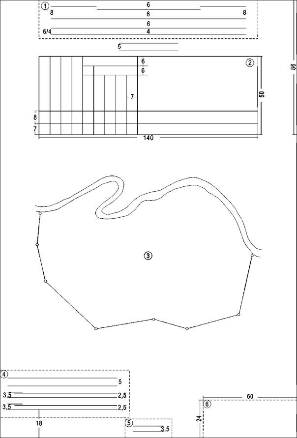
Задание 12. Лессировка
Лессировкой называется способ окраски, при котором путем наложения
друг на друга основных красок (красной, синей, жёлтой), получают
производные цвета. Например, при перекрытии синей и красной краски получится фиолетовый цвет, красной и желтой — оранжевый, синей и желтой — зеленый цвет. Перекрытие трех основных красок дает серый цвет.
Макет задания приведен на рис. 25.
Левый прямоугольник — ступенчатая шкала тонов, для получения которой квадраты 1, 2, 3 окрашивают желтой или красной краской слабого тона. Вторично окрашиваются квадраты 2 и 3, трижды покрывают краской квадрат 3.
Площадь правого прямоугольника, состоящего из 8 частей, окрасить тремя основными красками, с перекрытием некоторых частей. Окраску начинать с темных цветов, например: 2, 3, 6, 7 прямоугольники окрасить синей краской; 1, 2, 5, 6 — красной; 1, 2, 3, 4 прямоугольники — желтой краской. При наложении одной прозрачной краски на другую в перекрывающихся частях образуются новые производные цвета, а прямоугольник 8 остается белым. Схема, приведенная в этом прямоугольнике и показывающая последовательность окраски, не вычерчивается.
Задание 13. Фоновые знаки
Работа заключается в окраске контуров основных сельскохозяйственных угодий, севооборотных массивов, населенного пункта и площади поверхности воды способом механического смешивания красок.
Цвета составляют в соответствии с «Условными знаками, применяемыми при землеустройстве. Разводимые краски смешивают в определенных пропорциях и получают необходимые цвета и оттенки.
Макет работы приведен на рис. 26.
Для получения цветов условных знаков рекомендуется использовать краски и тона, приведенные в таблице№1.
В основу окраски контуров пашни, а также запроектированных к освоению в пашню пахотнопригодных земель из других угодий, положен принцип окраски по севооборотным массивам, которые окрашиваются растворами красок, приведенными в таблице №2.
Требования. Окраска контуров должна быть ровной, без пятен и полос. Цвета должны быть подобраны в соответствии с установленными условными знаками. Окраска должна выполняться точно по вычерченным границам.
Задание 14. Оформление плана землепользования
План землепользования является основным документом, который характеризует фактическое использование земли на момент землеустройства. В дальнейшем он служит основой для составления проекта внутрихозяйственного землеустройства, предусматривающего новые формы использования земли, будущее расположение различных угодий, полей севооборотов и других хозяйственных участков.
Оформление плана — завершающая работа по данному курсу черчения. Для ее выполнения необходимо снять копию с учебного плана (Приложение №7), составленного на часть территории хозяйства в масштабе 1:25 000. Размер листа чертежной бумаги — 210 x 297 мм (формат А4), размер рамки — 190 x 280 мм.

Рис. 25. Лессировка
![]() |
‘. 26.
Фоновые знаки

План состоит из 6 основных элементов (рис. 27).
1. Заголовок, для которого использованы прямые картографические шрифты — рубленый и обыкновенный. Название хозяйства выделяют размером и толщиной букв. Заголовок имеет общепринятую редакцию и не допускает переноса слов и сокращений.
2. Экспликация (таблица сельскохозяйственных угодий), с указанием площади угодий в гектарах (рис. 28).
3. Собственно план, который оформляется согласно требованиям настоящих методических указаний и в соответствии с действующими условными знаками, применяемыми при землеустройстве.
4. Описание смежеств, где приводятся сведения о землепользователях, граничащих с данным участком.
5. Масштаб плана.
6. Штамп организации (на данном чертеже не заполняется).
В большинстве случаев масштаб плана помещают внутри штампа. Оформление плана производить в следующем порядке:
1. Выполнить компоновку, т.е. рациональное размещение на листе бумаги всех вышеперечисленных элементов (рис. 27). Для заголовка и экспликации использовать верхнюю часть листа. Территорию землепользования расположить в центре. Описание смежеств — в левом нижнем углу, а масштаб вблизи южной рамки. Всю работу по компоновке плана выполнить карандашом 3 очень тщательно и аккуратно, что в дальнейшем облегчит его оформление.
2. После размещения и выполнения надписей карандашом приступить к вычерчиванию тушью центральной части чертежа. Вначале вычертить границу землепользования, населенные пункты, дороги и границы угодий. Затем, вместо подписанных внутри контуров названий (рис. 28), вычертить соответствующие условные знаки сельскохозяйственных угодий и растительности, соблюдая при этом правила расстановки заполняющих значков и их линейные размеры. Шрафировку (штриховку) населенных пунктов производить под углом 45° по отношению к западной (восточной) стороне рамки при помощи штриховального прибора.
Вычерчивание условных знаков выполнять одновременно на территории землепользования и в соответствующих границах экспликации.
3. После оформления всех элементов плана землепользования
тушью, приступить к окраске, одновременно окрашивая со
ответствующие условные знаки в экспликации.
Перед окраской поверхность бумаги почистить мягкой резинкой для удаления карандашных линии и грязи.
Для предотвращения растекания туши вычерченный план в течение двух-трех дней выдержать на дневном свету и смочить окрашиваемую поверхность раствором столового уксуса (из расчета одна столовая ложка уксуса на стакан воды).
Окраску больших по площади контуров производить по частям, используя в качестве граничных линий условные знаки дорог. Особенно тщательно производить окраску вблизи границ контуров с тем, чтобы избежать наложения различных цветовых тонов друг на друга.
В последнюю очередь оттенить внешние границы землепользования двумя произвольными цветами, но более яркими и контрастными по отношению к цветовым тонам угодий.
4. Шрифтовое оформление плана заключается в закреплении
тушью ранее выполненных карандашом надписей. Названия
населенных пунктов подписать рубленым полужирным
шрифтом, высотой 2 мм, строчными буквами. Название реки
— черной тушью обыкновенным шрифтом, высотой 2 мм.
Подписи в экспликации (включая и цифры) — стандартным
шрифтом, высотой 2,5 мм.
Румбы и меры линий подписать стандартным шрифтом, высотой 1,8 мм, располагая надпись возле середины каждой стороны примерно на расстоянии 10 мм.
Описание смежеств подписывается стандартным шрифтом при различной высоте строк: буквы, обозначающие начало и конец границы смежного землепользования, — 5 мм, остальные слова — 2,5 мм; наименование землепользования (в том числе название совхоза) — 3,5 мм. Значение масштаба плана подписать стандартным шрифтом высотой 3,5 мм.
![]() |
Рис. 27. Макет
компоновки
![]() |
Рис. 28. План
землепользования
ПРИЛОЖЕНИЯ










